物件情報
【区分収益】4.27%上北沢9分 2014年築オーナーチェンジ
| 所在地 |
東京都杉並区上高井戸3丁目 |
||
|---|---|---|---|
| 交通 |
京王線 上高井戸駅 徒歩9分 |
||
| 価格 |
3,450 万円 |
||
| 築年月 |
2014年10月 |
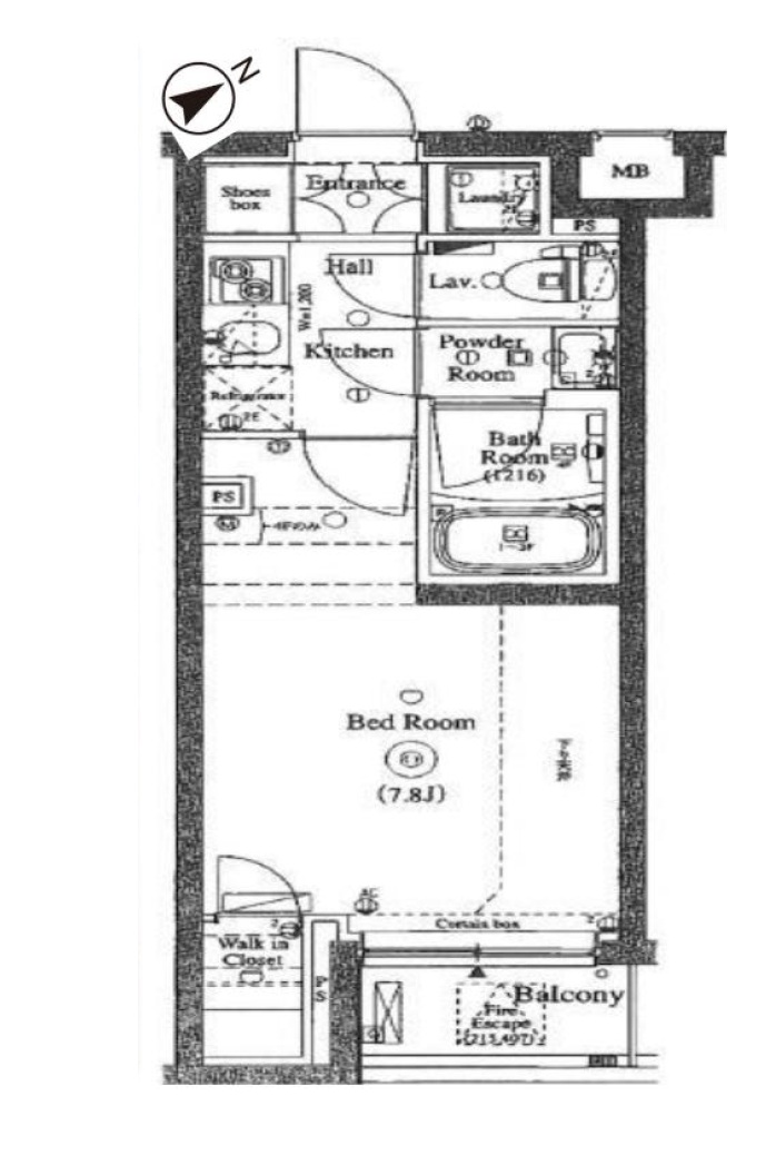
専有面積/バルコニー面積 |
25.05u |
| 間取り |
1K |
建物構造/階層/総戸数 |
SRC造/5階建(所在階3階)/58戸 |
| 土地権利 |
所有権 |
管理費 |
6,400円/月 |
| 修繕積立金 |
5,600円/月 |
管理形態 |
全部委託(巡回) |
| 取引態様 |
媒介 |
現況 |
賃貸中 |
| 引渡し |
相談 |
想定利回り/想定年収/月収 |
4.27%/147.6万円/12.3万円 |
| コメント |
2駅利用可! |
||
| 物件No |
20251209-1 |
次回更新予定 |
随時 |
物件のお問い合わせ
各項目を入力して、[ メールを送信する ]ボタンを押して下さい。




